
物件番号: | 物件種: | 物件名: |
---|---|---|
2448 | 中古住宅 | 佐川町東組(駅前)売家 |
画像をクリックすると拡大表示されます。
物件種目 | 中古住宅 | 物件名 | 佐川町東組(駅前)売家 |
---|---|---|---|
価格 | 2,320万円 | 築年月 | 令和4年 8月 |
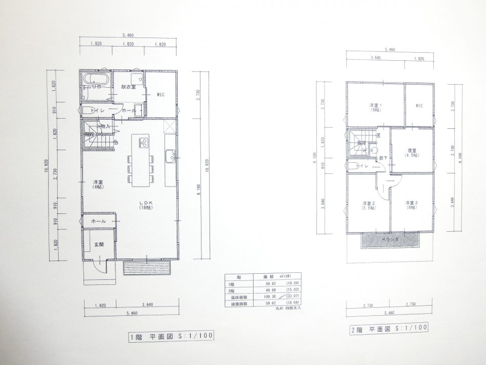
間取り・面積 | 4LDK |
間取り内容 | 1階:22LDK、WIC、トイレ、洗面、風呂 2階:6洋、6洋、5.5洋、4.5洋、WIC、トイレ |
建物構造 | 木造 | 駐車場 | 有り(料金込み)2台可 |
交通 | JR土讃線斗賀野駅徒歩1分 | ||
近隣施設 | 小学校, 保育園・幼稚園, 病院, 駅 | ||
設備 | エアコン, 専用庭, IHコンロ, 給湯, 追い炊き, クローゼット, 押入れ, 室内洗濯機置場, バルコニー, フローリング, ウォシュレット, エコキュート | ||
備考 | 売主居住中のため、内見は事前に要予約 |
[最終更新日]2025.10.02 ※掲載情報と現状に差異がある場合は、現状優先となります。
◎ お電話でのお問合せは 0889-22-3036(営業時間 9:00〜17:00)